雅致黑白灰--【Euphoria】
更新于2021-11-2218.3W浏览
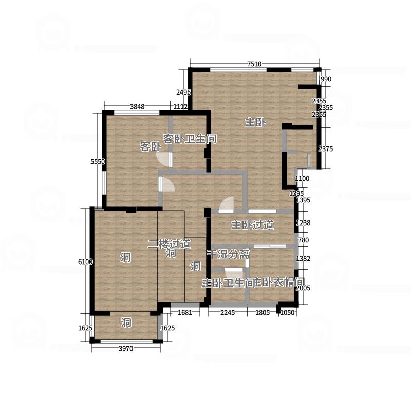
LOFT上下二层设计,客户是一对新婚夫妇,事业有成!整体户型可以了解到,客厅,餐厅采光还是不错,包括入户处,但是有一次是在设计上来说就是“小黑屋”性质了,因此在设计上采用规避方式设计,即设计成卫生间以及衣帽间!客户要求配有客餐厅,保姆房,书房以及客房,主卧!其中主卧包含衣帽间和独立卫生间并且需要一个洗衣服,因此在设计上采用分割的形式划分区域,采用了南北走势进行区域划分,生活习惯带动功能划分!考虑到客户对预赛你的把控,在设计上以及施工运用上采用严格的把控,力求做到:低成本,低碳,舒适,要求并作为设计的核心价值进行铺盖下去,甚至为设计理念!!!!
雅致黑白灰--【Euphoria】
著作权归作者所有。商业转载请联系作者获得授权,非商业转载请注明出处









































