91方简美客餐厅

更新于2019-09-3016.4W浏览
这个客厅空间宽敞明亮,整体装修风格为美式风格。墙面是米黄色的,给人一种温馨舒适的感觉。吊顶采用的是白色,与墙面形成鲜明的对比,让整个空间更加立体。家私布置得当,白色沙发搭配黄色和绿色的抱枕,非常时尚。茶几和电视柜都是深色的木制家私,与整个空间的装修风格相匹配。地面上铺着黄色底橘色条纹的地毯,增加了空间的色彩,同时也方便在地毯上放置地毯茶几等家具。墙面挂着装饰画和装饰品,让空间更加有艺术感。整体来说,这个客厅装修风格舒适,色调搭配和谐,家私布置得当,非常适宜居住。

小区:

未知小区

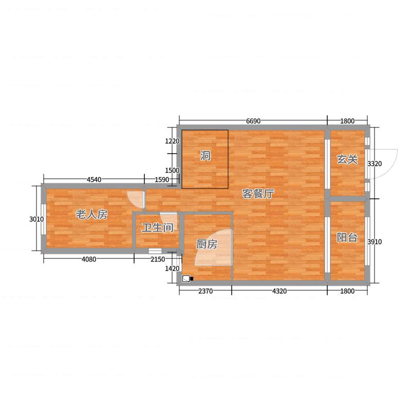
户型:1室2厅1卫1厨

面积:91 m2

标签:

简美家装

简美风格的特色是将设计的元素、色彩、照明、原材料,简化到最少的程度。家居环境中的空间布局、色彩运用、材质的选择,都突出了简约又大气的风格。
91方简美客餐厅
一层 · 
概览
城市人家设计师苏国税-91方简美客餐厅-户型图概览
一层 · 
客餐厅
模型清单
城市人家设计师苏国税-91方简美客餐厅一层客餐厅装修效果图第1张
城市人家设计师苏国税-91方简美客餐厅一层客餐厅装修效果图第2张
城市人家设计师苏国税-91方简美客餐厅一层客餐厅装修效果图第3张
城市人家设计师苏国税-91方简美客餐厅一层客餐厅装修效果图第4张
城市人家设计师苏国税-91方简美客餐厅一层客餐厅装修效果图第5张3D全景 >
城市人家设计师苏国税-91方简美客餐厅一层客餐厅装修效果图第1张城市人家设计师苏国税-91方简美客餐厅一层客餐厅装修效果图第2张城市人家设计师苏国税-91方简美客餐厅一层客餐厅装修效果图第3张城市人家设计师苏国税-91方简美客餐厅一层客餐厅装修效果图第4张城市人家设计师苏国税-91方简美客餐厅一层客餐厅装修效果图第5张
一层 · 
玄关
模型清单
城市人家设计师苏国税-91方简美客餐厅一层玄关装修效果图第1张
二层 · 
概览
城市人家设计师苏国税-91方简美客餐厅-户型图概览
155
16

大家对方案的印象