重庆龙湖学樘府南法自然主义私宅

更新于2024-11-238965浏览

小区:

学樘府

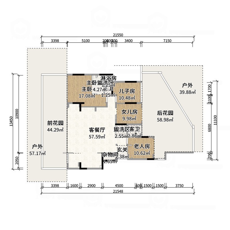
户型:4室2厅3卫0厨

面积:137 m2

标签:

侘寂地中海混搭家装

洁白富有肌理感的墙面,搭配上咖啡与牛奶混合色调的木材,再伴随天然温润的石材,这种感觉像极了在童话故事里的南法庄园。这间140平的房子位于重庆大学城,位于一楼的它前后带有共计100平的院子,绿色环抱。在设计中,通过拓展空视觉效果让整个空间更加的通透大气,增加采光与通风面使室内外空间的交互性得到增强,同时注重居者的隐私性与生活体验,贴近自然,慵懒闲适。
重庆龙湖学樘府南法自然主义私宅
一层 · 
概览
熬暖酱-重庆龙湖学樘府南法自然主义私宅-户型图概览
一层 · 
后花园
模型清单
熬暖酱-重庆龙湖学樘府南法自然主义私宅一层后花园装修效果图第1张
熬暖酱-重庆龙湖学樘府南法自然主义私宅一层后花园装修效果图第2张
熬暖酱-重庆龙湖学樘府南法自然主义私宅一层后花园装修效果图第3张
熬暖酱-重庆龙湖学樘府南法自然主义私宅一层后花园装修效果图第4张
熬暖酱-重庆龙湖学樘府南法自然主义私宅一层后花园装修效果图第5张
熬暖酱-重庆龙湖学樘府南法自然主义私宅一层后花园装修效果图第1张熬暖酱-重庆龙湖学樘府南法自然主义私宅一层后花园装修效果图第2张熬暖酱-重庆龙湖学樘府南法自然主义私宅一层后花园装修效果图第3张熬暖酱-重庆龙湖学樘府南法自然主义私宅一层后花园装修效果图第4张熬暖酱-重庆龙湖学樘府南法自然主义私宅一层后花园装修效果图第5张
一层 · 
客餐厅
模型清单
熬暖酱-重庆龙湖学樘府南法自然主义私宅一层客餐厅装修效果图第1张
熬暖酱-重庆龙湖学樘府南法自然主义私宅一层客餐厅装修效果图第2张
熬暖酱-重庆龙湖学樘府南法自然主义私宅一层客餐厅装修效果图第3张
熬暖酱-重庆龙湖学樘府南法自然主义私宅一层客餐厅装修效果图第4张
熬暖酱-重庆龙湖学樘府南法自然主义私宅一层客餐厅装修效果图第5张
熬暖酱-重庆龙湖学樘府南法自然主义私宅一层客餐厅装修效果图第1张熬暖酱-重庆龙湖学樘府南法自然主义私宅一层客餐厅装修效果图第2张熬暖酱-重庆龙湖学樘府南法自然主义私宅一层客餐厅装修效果图第3张熬暖酱-重庆龙湖学樘府南法自然主义私宅一层客餐厅装修效果图第4张熬暖酱-重庆龙湖学樘府南法自然主义私宅一层客餐厅装修效果图第5张
一层 · 
前花园
模型清单
熬暖酱-重庆龙湖学樘府南法自然主义私宅一层前花园装修效果图第1张
熬暖酱-重庆龙湖学樘府南法自然主义私宅一层前花园装修效果图第2张
熬暖酱-重庆龙湖学樘府南法自然主义私宅一层前花园装修效果图第3张
熬暖酱-重庆龙湖学樘府南法自然主义私宅一层前花园装修效果图第4张
熬暖酱-重庆龙湖学樘府南法自然主义私宅一层前花园装修效果图第5张
熬暖酱-重庆龙湖学樘府南法自然主义私宅一层前花园装修效果图第1张熬暖酱-重庆龙湖学樘府南法自然主义私宅一层前花园装修效果图第2张熬暖酱-重庆龙湖学樘府南法自然主义私宅一层前花园装修效果图第3张熬暖酱-重庆龙湖学樘府南法自然主义私宅一层前花园装修效果图第4张熬暖酱-重庆龙湖学樘府南法自然主义私宅一层前花园装修效果图第5张
一层 · 
老人房
模型清单
熬暖酱-重庆龙湖学樘府南法自然主义私宅一层老人房装修效果图第1张
熬暖酱-重庆龙湖学樘府南法自然主义私宅一层老人房装修效果图第2张
熬暖酱-重庆龙湖学樘府南法自然主义私宅一层老人房装修效果图第3张
熬暖酱-重庆龙湖学樘府南法自然主义私宅一层老人房装修效果图第4张3D全景 >
熬暖酱-重庆龙湖学樘府南法自然主义私宅一层老人房装修效果图第1张熬暖酱-重庆龙湖学樘府南法自然主义私宅一层老人房装修效果图第2张熬暖酱-重庆龙湖学樘府南法自然主义私宅一层老人房装修效果图第3张熬暖酱-重庆龙湖学樘府南法自然主义私宅一层老人房装修效果图第4张
一层 · 
女儿房
模型清单
熬暖酱-重庆龙湖学樘府南法自然主义私宅一层女儿房装修效果图第1张
熬暖酱-重庆龙湖学樘府南法自然主义私宅一层女儿房装修效果图第2张
熬暖酱-重庆龙湖学樘府南法自然主义私宅一层女儿房装修效果图第3张
熬暖酱-重庆龙湖学樘府南法自然主义私宅一层女儿房装修效果图第4张
熬暖酱-重庆龙湖学樘府南法自然主义私宅一层女儿房装修效果图第5张3D全景 >
熬暖酱-重庆龙湖学樘府南法自然主义私宅一层女儿房装修效果图第1张熬暖酱-重庆龙湖学樘府南法自然主义私宅一层女儿房装修效果图第2张熬暖酱-重庆龙湖学樘府南法自然主义私宅一层女儿房装修效果图第3张熬暖酱-重庆龙湖学樘府南法自然主义私宅一层女儿房装修效果图第4张熬暖酱-重庆龙湖学樘府南法自然主义私宅一层女儿房装修效果图第5张
一层 · 
主卧盥洗区
模型清单
熬暖酱-重庆龙湖学樘府南法自然主义私宅一层主卧盥洗区装修效果图第1张
熬暖酱-重庆龙湖学樘府南法自然主义私宅一层主卧盥洗区装修效果图第2张
熬暖酱-重庆龙湖学樘府南法自然主义私宅一层主卧盥洗区装修效果图第3张
熬暖酱-重庆龙湖学樘府南法自然主义私宅一层主卧盥洗区装修效果图第4张3D全景 >
熬暖酱-重庆龙湖学樘府南法自然主义私宅一层主卧盥洗区装修效果图第1张熬暖酱-重庆龙湖学樘府南法自然主义私宅一层主卧盥洗区装修效果图第2张熬暖酱-重庆龙湖学樘府南法自然主义私宅一层主卧盥洗区装修效果图第3张熬暖酱-重庆龙湖学樘府南法自然主义私宅一层主卧盥洗区装修效果图第4张
一层 · 
客卫
模型清单
熬暖酱-重庆龙湖学樘府南法自然主义私宅一层客卫装修效果图第1张
熬暖酱-重庆龙湖学樘府南法自然主义私宅一层客卫装修效果图第2张
熬暖酱-重庆龙湖学樘府南法自然主义私宅一层客卫装修效果图第3张3D全景 >
熬暖酱-重庆龙湖学樘府南法自然主义私宅一层客卫装修效果图第1张熬暖酱-重庆龙湖学樘府南法自然主义私宅一层客卫装修效果图第2张熬暖酱-重庆龙湖学樘府南法自然主义私宅一层客卫装修效果图第3张
一层 · 
盥洗区
模型清单
熬暖酱-重庆龙湖学樘府南法自然主义私宅一层盥洗区装修效果图第1张
熬暖酱-重庆龙湖学樘府南法自然主义私宅一层盥洗区装修效果图第2张3D全景 >
熬暖酱-重庆龙湖学樘府南法自然主义私宅一层盥洗区装修效果图第1张熬暖酱-重庆龙湖学樘府南法自然主义私宅一层盥洗区装修效果图第2张
一层 · 
玄关
模型清单
熬暖酱-重庆龙湖学樘府南法自然主义私宅一层玄关装修效果图第1张
熬暖酱-重庆龙湖学樘府南法自然主义私宅一层玄关装修效果图第2张3D全景 >
熬暖酱-重庆龙湖学樘府南法自然主义私宅一层玄关装修效果图第1张熬暖酱-重庆龙湖学樘府南法自然主义私宅一层玄关装修效果图第2张
一层 · 
主卫
模型清单
熬暖酱-重庆龙湖学樘府南法自然主义私宅一层主卫装修效果图第1张3D全景 >
一层 · 
淋浴房
模型清单
熬暖酱-重庆龙湖学樘府南法自然主义私宅一层淋浴房装修效果图第1张3D全景 >
21
13

大家对方案的印象